NDC ਨੇ ਲਾਈਨਰ ਰਹਿਤ ਅਤੇ ਦਬਾਅ-ਸੰਵੇਦਨਸ਼ੀਲ ਲੇਬਲਾਂ ਦੇ ਨਾਲ-ਨਾਲ ਔਨਲਾਈਨ ਸਿਲੀਕੋਨ ਕੋਟਿੰਗ ਦੇ ਨਾਲ ਟੇਪ ਦੀ ਇੱਕ ਵਿਸ਼ਾਲ ਸ਼੍ਰੇਣੀ ਲਈ ਸਟੀਕ ਐਪਲੀਕੇਸ਼ਨ ਲਈ ਇੱਕ ਏਕੀਕ੍ਰਿਤ ਸਿਲੀਕੋਨ ਕੋਟਿੰਗ ਅਤੇ ਗਲੂ ਕੋਟਿੰਗ ਵਿਕਸਿਤ ਕੀਤੀ ਹੈ।ਏਕੀਕ੍ਰਿਤ ਕੋਟਿੰਗ ਲਾਈਨ ਵਿੱਚ ਬਹੁਤ ਸਾਰੇ ਵੱਖ-ਵੱਖ ਭਾਗ ਸ਼ਾਮਲ ਹੁੰਦੇ ਹਨ, ਗਾਹਕ ਦੀ ਉਤਪਾਦ ਲਾਈਨ ਅੱਪ ਲਈ ਕਈ ਤਰ੍ਹਾਂ ਦੀਆਂ ਵਸਤੂਆਂ ਪੈਦਾ ਕਰਨ ਲਈ ਅਨਵਾਈਂਡ ਤੋਂ ਰੀਵਾਈਂਡ ਤੱਕ।
ਤਕਨਾਲੋਜੀ ਤੱਥ
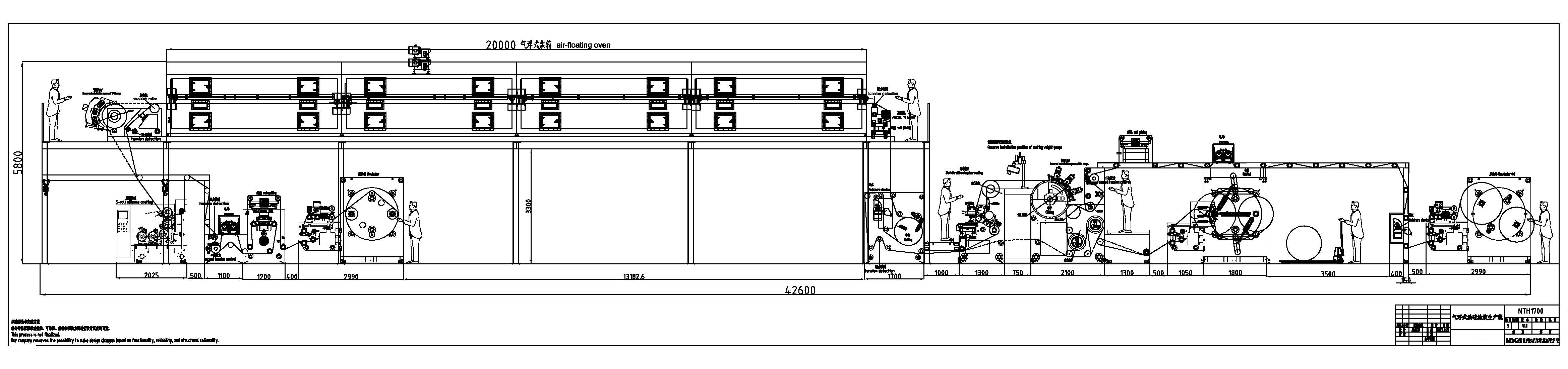
1.ਲਾਈਨ ਸਪੀਡ: 300m/min
2. ਸਮੱਗਰੀ ਚੌੜਾਈ: 1600mm
3.ਰੀਅਲ ਵਿਆਸ: 1200mm
4.Unwinder: ਆਟੋਮੈਟਿਕ ਬੁਰਜ unwinding
5. ਰਿਵਾਈਂਡਰ: ਆਟੋਮੈਟਿਕ ਬੁਰਜ ਰੀਵਾਈਂਡਿੰਗ
ਸਿਲੀਕੋਨ ਪਰਤ ਤਕਨਾਲੋਜੀ
1. ਕੋਟਿੰਗ ਵਿਧੀ: 5-ਰੋਲਰ ਸਿਲੀਕੋਨ ਕੋਟਿੰਗ (ਵਿਕਲਪਿਕ ਤੌਰ 'ਤੇ 3 ਰੋਲਰ ਨਾਲ)
5-ਰੋਲਰ ਸਿਸਟਮ ਧਿਆਨ ਨਾਲ ਸਿਲੀਕੋਨ ਦੀ ਵਰਤੋਂ ਅਤੇ ਕੋਟ ਦੇ ਭਾਰ ਨੂੰ ਨਿਯੰਤਰਿਤ ਕਰਦਾ ਹੈ।ਐਨੀਲੋਕਸ ਰੋਲ ਬਫਰ ਤੋਂ ਸਿਲੀਕੋਨ ਨੂੰ ਬਿਲਕੁਲ ਸਹੀ ਮੋਟਾਈ ਦੇ ਨਾਲ ਕੋਟਿੰਗ ਰੋਲ 'ਤੇ ਲਾਗੂ ਕਰਦਾ ਹੈ।ਕੋਟਿੰਗ ਰੋਲ ਫਿਰ ਸਿਲੀਕੋਨ ਨੂੰ ਸਬਸਟਰੇਟ 'ਤੇ ਲਾਗੂ ਕਰਦਾ ਹੈ।ਹਰੇਕ ਵੇਰੀਏਬਲ ਸਪੀਡ ਰੋਲ ਅਵਿਸ਼ਵਾਸ਼ਯੋਗ ਸ਼ੁੱਧਤਾ ਪ੍ਰਦਾਨ ਕਰਨ ਲਈ ਸੁਤੰਤਰ ਤੌਰ 'ਤੇ ਚਲਾਇਆ ਜਾਂਦਾ ਹੈ।ਇਹ ਘੱਟ ਸਿਲੀਕੋਨ ਕੋਟ ਵਜ਼ਨ ਨੂੰ ਲਾਗੂ ਕਰਨ ਦੀ ਯੋਗਤਾ ਦੀ ਵੀ ਪੇਸ਼ਕਸ਼ ਕਰਦਾ ਹੈ, ਇਸ ਨੂੰ ਲਾਈਨਰਲੇਸ ਡਾਇਰੈਕਟ ਥਰਮਲ ਲੇਬਲਾਂ ਲਈ ਵਧ ਰਹੇ ਬਾਜ਼ਾਰ ਵਿੱਚ ਟੈਪ ਕਰਨ ਲਈ ਇੱਕ ਵਧੀਆ ਯੂਨਿਟ ਬਣਾਉਂਦਾ ਹੈ।
2. ਸਿਲੀਕੋਨ ਕਿਸਮ: ਯੂਵੀ ਸਿਲੀਕੋਨ ਕੋਟਿੰਗ;ਸਿਲੀਕੋਨ-ਮੁਕਤ ਪਰਤ
3. ਐਪਲੀਕੇਸ਼ਨ: ਹਾਈ ਸਪੀਡ ਸਿੰਗਲ ਸਾਈਡ ਸਿਲੀਕੋਨ ਕੋਟੇਡ ਰੀਲੀਜ਼ ਲਾਈਨਰ (ਗਲਾਸਾਈਨ, SCK, CCK, PCK, ਆਦਿ) ਅਤੇ ਫਿਲਮ ਲਾਈਨਰ (BOPP, PE, PET) ਉਤਪਾਦਨ ਲਈ ਉਚਿਤ
ਕੋਟਿੰਗ ਤਕਨਾਲੋਜੀ
1. ਕੋਟਿੰਗ ਵਿਧੀ: ਰੋਟਰੀ ਬਾਰ ਦੇ ਨਾਲ ਸਲਾਟ ਡਾਈ ਕੋਟਿੰਗ
ਉੱਚ ਕੋਟਿੰਗ ਗੁਣਵੱਤਾ ਪ੍ਰਾਪਤ ਕਰਨ ਲਈ ਕੋਟਿੰਗ ਡਾਈ ਦੇ ਸੈੱਟ ਨੂੰ ਪੂਰਾ ਕਰਨ ਲਈ 11 ਪ੍ਰੋਸੈਸਿੰਗ ਕਦਮਾਂ ਦੇ ਨਾਲ 90 ਦਿਨ ਲੱਗਦੇ ਹਨ।
2, ਐਪਲੀਕੇਸ਼ਨ: ਗਰਮ ਪਿਘਲਣ ਵਾਲੀ ਗੂੰਦ;UV ਗੂੰਦ;ਪਾਣੀ ਆਧਾਰਿਤ
ਸੁਕਾਉਣ ਤਕਨਾਲੋਜੀ
1. ਹਾਈ ਸਪੀਡ 'ਤੇ ਸਹੀ ਸਿਲੀਕੋਨ ਇਲਾਜ ਨੂੰ ਯਕੀਨੀ ਬਣਾਉਣ ਲਈ ਉੱਚ ਕੁਸ਼ਲ ਨਾਲ ਏਅਰ ਫਲੋਟੇਸ਼ਨ ਡ੍ਰਾਇਅਰ
2.4 ਸੈਕਸ਼ਨ ਡਰਾਇਰ, ਹਰੇਕ ਸੈਕਸ਼ਨ ਲਈ ਲੰਬਾਈ 5 ਮੀ
3. ਨਮੀ ਦਾ ਪਤਾ ਲਗਾਉਣਾ ਅਤੇ ਰੀਸਰਕੁਲੇਸ਼ਨ ਹਵਾ ਦਾ ਨਿਯੰਤਰਣ
4. ਪ੍ਰਕਿਰਿਆ ਦੌਰਾਨ ਤਣਾਅ ਨੂੰ ਨਿਯੰਤਰਿਤ ਕਰਨ ਲਈ ਡ੍ਰਾਇਰ ਮੋਡੀਊਲ ਦੇ ਅਗਲੇ ਅਤੇ ਪਿਛਲੇ ਭਾਗ ਵਿੱਚ ਤਣਾਅ ਖੋਜ ਅਤੇ ਵੈਕਿਊਮ ਰੋਲਰਸ ਨਾਲ ਲੈਸ.
5. ਸਾਰੇ ਕੋਟਿੰਗ ਮਿਸ਼ਰਣਾਂ ਲਈ ਉੱਚ ਪ੍ਰਦਰਸ਼ਨ ਕਨਵੈਕਸ਼ਨ ਓਵਨ
ਕੰਪੋਨੈਂਟਸ
ਕਰੋਨਾ ਇਲਾਜ (ਵਿਕਲਪਿਕ)
UV-ਲੈਂਪ ਸਿਸਟਮ ਲਈ ਇੰਸਟਾਲੇਸ਼ਨ ਸਪੇਸ ਰਿਜ਼ਰਵ ਕਰੋ
ਵੈੱਬ ਮਾਰਗਦਰਸ਼ਨ
ਤਣਾਅ ਨਿਯੰਤਰਣ
ਆਨਲਾਈਨ ਗੂੰਦ ਮੋਟਾਈ ਗੇਜ (ਵਿਕਲਪਿਕ)
ਸਪਰੇਅ ਪਲੇਟ ਨਮੀ
ਭਾਫ਼ ਦੀ ਨਮੀ
ਵੈੱਬ ਕਲੀਨਰ
NDC ਦੁਆਰਾ ਤਿਆਰ ਕੀਤੇ ਸਿਸਟਮ ਹੱਲ ਵਿੱਚ ਬਹੁਤ ਸਾਰੇ ਪ੍ਰਕਿਰਿਆ ਸੁਧਾਰ ਅਤੇ ਡਿਜ਼ਾਈਨ ਸ਼ਾਮਲ ਕੀਤੇ ਗਏ ਹਨ ਜੋ ਨਵੀਂ ਲਾਈਨ ਦੀ ਗਤੀ ਅਤੇ ਲਾਗਤ-ਪ੍ਰਭਾਵ ਵਿੱਚ ਵਾਧਾ ਦੇਖਣ ਵਿੱਚ ਮਦਦ ਕਰਦੇ ਹਨ।ਸਾਡੇ ਕੋਲ ਪ੍ਰੋਜੈਕਟ ਨੂੰ ਸਫਲ ਬਣਾਉਣ ਲਈ ਗਿਆਨ ਅਤੇ ਅਨੁਭਵ ਹੈ।ਕਿਸੇ ਵੀ ਜਾਣਕਾਰੀ ਦੀ ਲੋੜ ਹੈ, ਕਿਰਪਾ ਕਰਕੇ ਸਾਨੂੰ ਈਮੇਲ ਦੁਆਰਾ ਸੰਪਰਕ ਕਰੋ:info@ndccn.com
ਪੋਸਟ ਟਾਈਮ: ਦਸੰਬਰ-28-2023
